BEFORE RENOVATION

X  Novo Vineyards

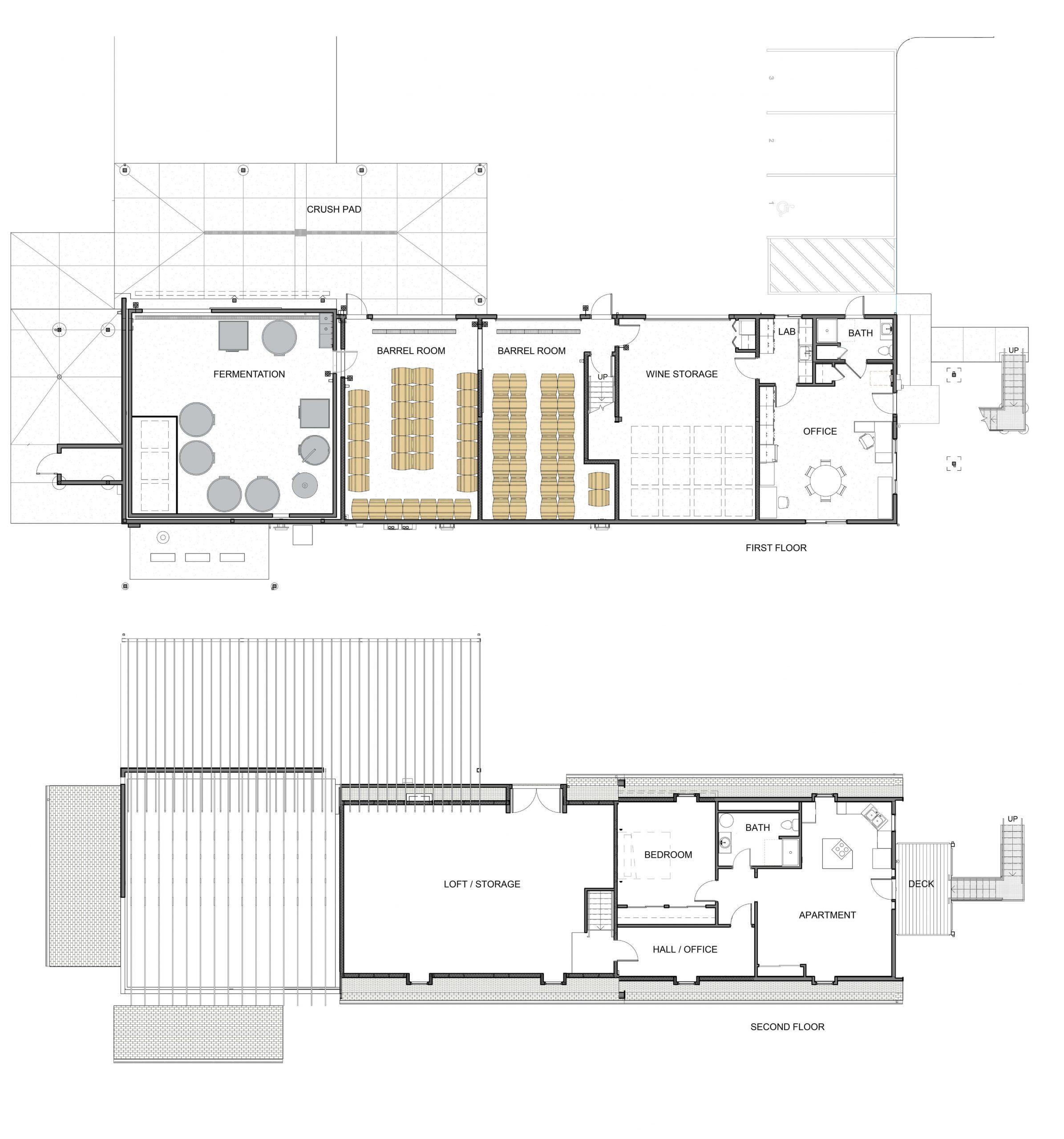
An existing barn in rural Willamette Valley Oregon is converted into a fully functional winery and residence. A large exterior covered crush pad is added to provide cover for grape receiving and sorting. Interior spaces are renovated to include a fermentation room, barrel rooms, wine storage, lab and office. A second floor apartment is renovated and expanded to include more gracious living areas and a new exterior deck and stair.