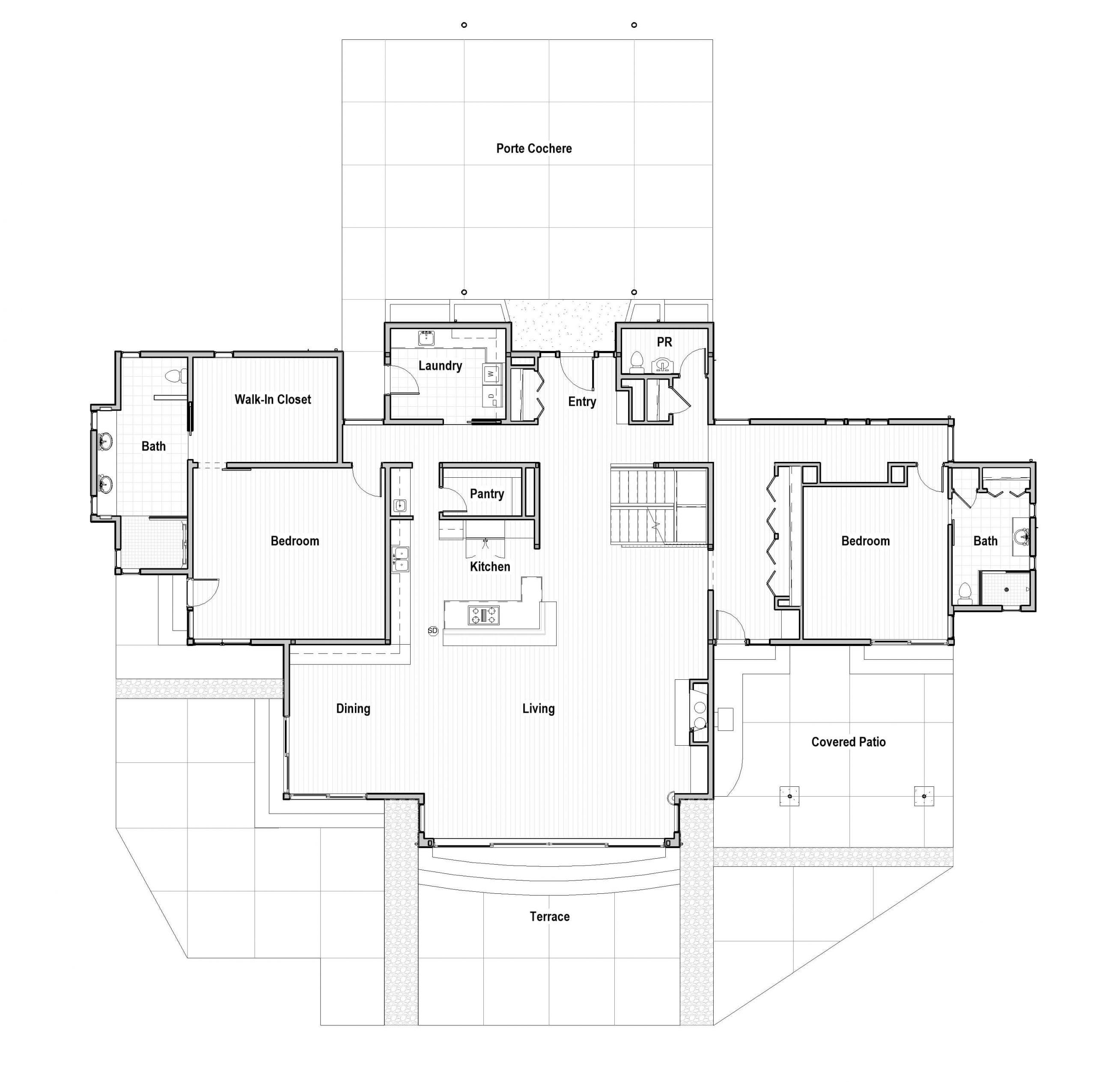
Photo during construction, updates coming soon Photo during construction, updates coming soon Photo during construction, updates coming soon Photo during construction, updates coming soon Rendering Rendering Rendering Gaston Oregon Residence 2 Large residence and 3-car garage in the hills of the Willamette Valley overlooking Oregon’s Coast Range. Projects