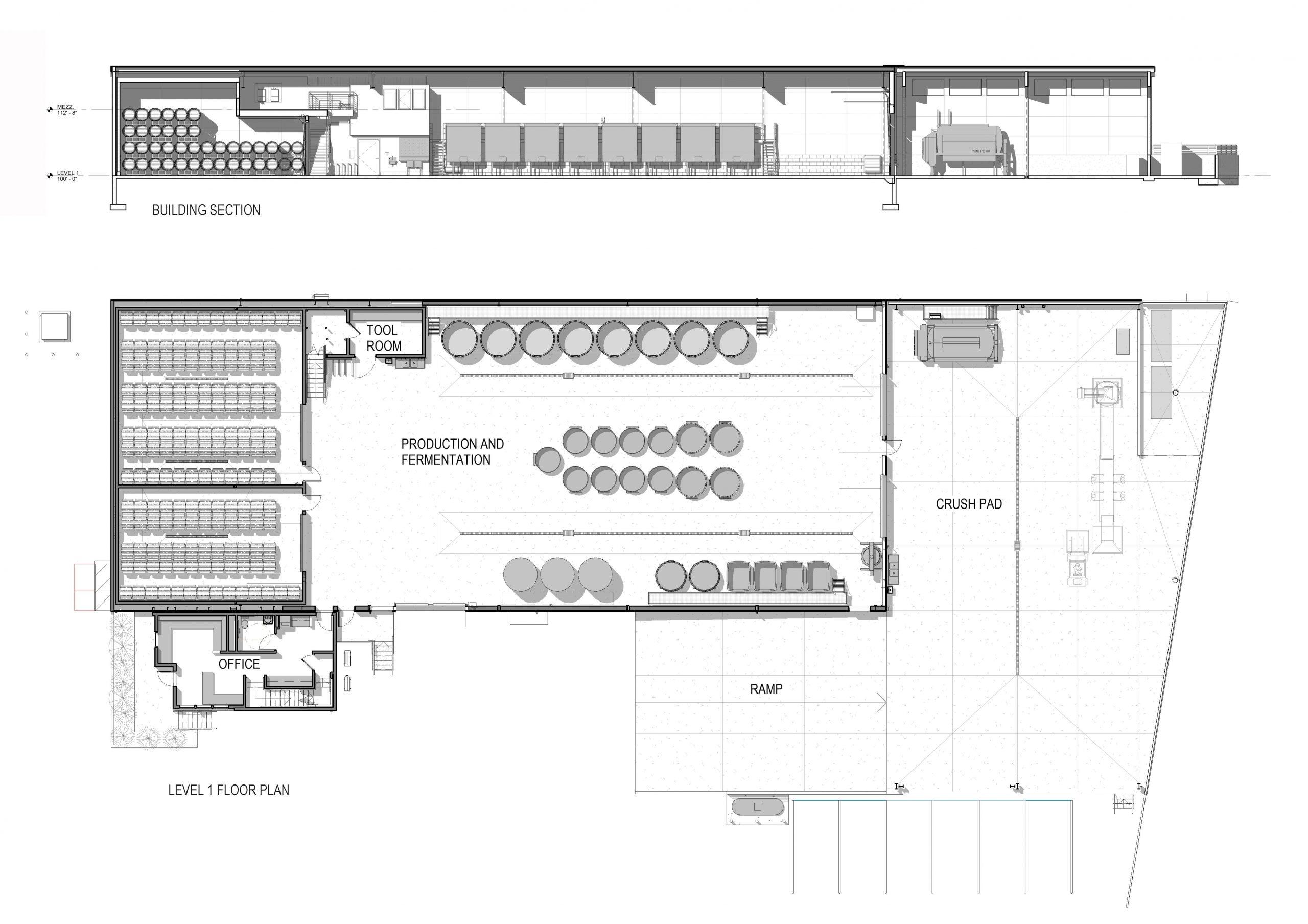
Original Building Building renovation and addition. Two story + basement office addition. Crush pad addition.

Flaneur Winery

Flaneur Wines purchased an existing 9,000 sf warehouse for the purpose of creating a world class wine production facility. This project required the existing building to be substantially modified and equipped with new utilities necessary for winery use. A new 4,800 sf covered exterior work area is added for grape receiving, sorting, and crushing. A new 2-story office addition with full basement is added to support the winery’s administration functions.